For nearly three decades, Benson Design & Development Co. has provided luxury residential design services, from home renovations to new construction ventures. We uphold the pinnacle of craftsmanship, meticulously crafting drawings, plans, sections, and intricate details tailored to suit your project. Seamless collaboration with engineers and external consultants ensures that every facet of our designs is carefully utilized during the construction process, thereby optimizing functionality and aesthetics.
PALISADES DESIGN & DEVELOPMENT
POWERED BY
BENSON DESIGN & DEVELOPMENT CO.
As residents of the Pacific Palisades, this tragedy is personal. Benson Design & Development stands with all victims of wildfire and we’re committed to providing professional design services to homeowners. Click below to hear our story and what we can do to help rebuild.
ANGELO DRIVE
B E V E R L Y H I L L S
Originally designed in 1953 by famed mid-century modern architect, Gregory Ain, the Feldman House is reborn. This exquisite modern estate offers private serenity on just under an acre of wooded grounds up the street from the Beverly Hills Hotel.
ROXBURY DRIVE
B E V E R L Y W O O D
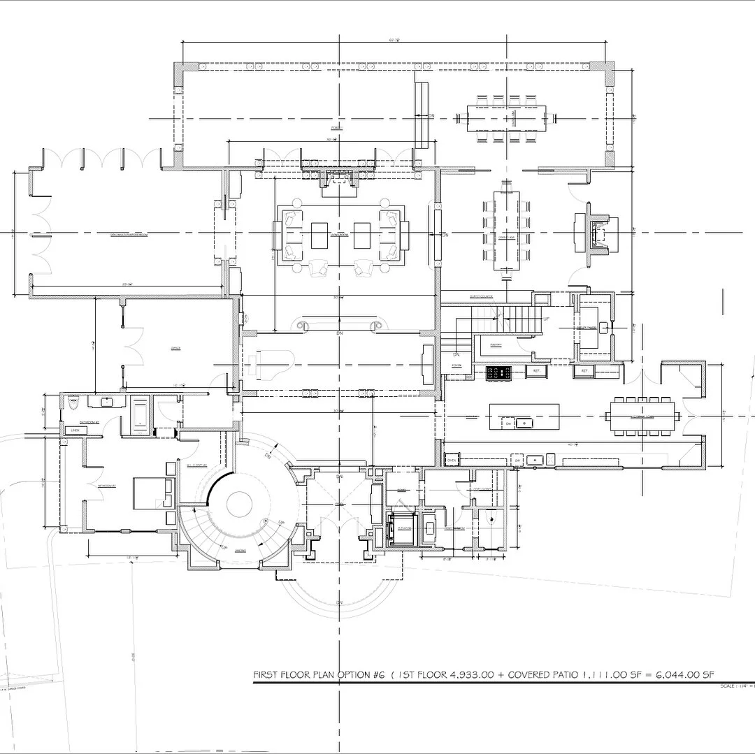
Nestled within the serene landscape, this remarkable dwelling stands as a testament to timeless elegance and meticulous craftsmanship. Spanning two stories with a full basement, encompassing an impressive 8,000 square feet, this custom-built residence is a harmonious fusion of Tuscan/Italian style.
SUMMIT RIDGE CIRCLE
C H A T S W O R T H
In 1998, our esteemed client acquired a residence crafted by a Spec. Developer, unfortunately, imbued with a dearth of refinement in both materials and design. Recognizing the potential for elevation, our client entrusted me with the task of infusing the home with European influences to distinguish it.
